Geschäftsfläche EG mit Lager in bester Lage von Kufstein!

Datenblatt
ImmoNr. 4089 EG
Nutzungsart Gewerbe
Vermarktungsart Miete
Objektart Laden/Einzelhandel
Objekttyp Geschäftslokal
PLZ 6330
Ort Kufstein
Straße Arkadenplatz
Hausnummer 1 EG
Land Österreich
Etage d. Objekts EG
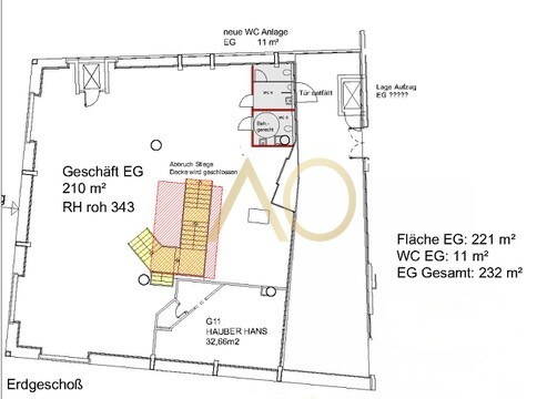
Nutzfläche 232 m²
Gesamtfläche 308 m²
Lagerfläche 76 m²
Verkaufsfläche 210 m²
Anzahl sep. WC 2
Anzahl Stellplätze 1
Stellplätze 1 Tiefgaragenstellplatz
Boden Fliesen
Befeuerung Fernwärme
Teeküche Ja
Fahrstuhl Personenaufzug
Lastwagenzufahrt Ja
Provision 2 Bruttomonatsmieten zzgl. MwSt.
Erläuterung Provision 2 Bruttomonatsmieten
Objektbeschreibung In der belebten Einkaufspassage "Arkaden Platz" im Herzen der Bezirkshauptstadt Kufstein in Tirol erhebt sich ein majestätisches Geschäft mit großzügigen Glasfronten, die das Licht einfangen und die Schönheit der Waren zur Geltung bringen. Mit über 210 m² Verkaufsfläche, sowie einem geräumigen Lager und einem Personal-WC im Untergeschoss, bietet dieses Geschäft alles, was ein erfolgreicher Einzelhändler benötigt.

Die strategische Lage mitten in den Arkaden gewährleistet eine konstante Fußgängerfrequenz, während die angrenzende Tiefgarage mit über 400 Parkplätzen Kunden bequem empfängt. Diese ideale Kombination aus Zugänglichkeit und Attraktivität macht es zu einem Ort, an dem gute Geschäfte gemacht werden können und hohe Umsätze erwirtschaftet werden.
Energieausweis
Baujahr 1993
Zustand Gepflegt
HWB 17,9 kWh/(m²a)
Klasse HWB C
fGEE 1,01
3D-Rundgang zu dieser Immobilie
Ausstattung Flächen
Top G13 E G insgesamt ca. 308 m²
232 m² Geschäft EG
76 m² Lagerraum und Personal WC UG

Ein Personenlift sowie eine Lüftungsanlage sind vorhanden.
Lage Zentraler Platz inmitten von Kufstein mit Geschäftslokalen, Gastronomie und Hotellerie, Kindergarten, Büros und einer öffentlichen Tiefgarage (eine Anmietung von Dauerparkplätzen in der Tiefgarage ist ebenso möglich.
Sonstiges Kaution: 3 Bruttomonatsmieten
Verfügbar: ab August 2024
Grundrisse
  • Außenansicht
  • Plan AKPL 1 Top G13 EG
  • Erdgeschoß
  • Erdgeschoß
  • Untergeschoß
  • Untergeschoß
Ihr/e Ansprechpartner/in
  • Karl Oberreiter
Herr Ing. Karl Oberreiter
E-Mail: k.oberreiter@almeno.at
Tel.: +43 5372 66774
Mobil: +43 699 1704 1704
Kontaktanfrage

Mit * gekennzeichnete Felder sind Pflichtangaben. Persönliche Daten werden absolut vertraulich behandelt und nicht unbefugt an Dritte weitergegeben.

Weitere interessante Immobilien
150 m²
Geschäftslokal in bester Lage von Kufstein!
6330 Kufstein
50 m²
Geschäftslokal in bester Lage von Kufstein!
6330 Kufstein
588 m²
Geschäftslokal in bester Lage von Kufstein!
6330 Kufstein

Exklusiver Immobilien-Gutschein!

Erfolgreich kaufen oder verkaufen, trotz steigender Zinsen. Der Markt hat sich gedreht, wir haben den Durchblick.

Jetzt kostenlos beraten lassen!