Grundstück mit Baugenehmigung

Datenblatt
ImmoNr. 4190
Nutzungsart Wohnen
Vermarktungsart Kauf
Objektart Grundstück
Objekttyp Wohnen
PLZ 6380
Ort St. Johann in Tirol
Land Österreich
Gartenfläche 130 m²
Kabel Sat TV Ja
Gartennutzung Ja
Balkon Ja
Kaufpreis auf Anfrage
Provision 3% zzgl. MwSt.
Erläuterung Provision 3% zzgl. MwSt.
Preis auf Anfrage Ja
Objektbeschreibung Herzlich willkommen zu einem außergewöhnlichen Investitionsangebot im Herzen von St. Johann in Tirol. Dieses hervorragend projektierte Bauvorhaben bietet die seltene Gelegenheit zum Erwerb eines Grundstücks mit genehmigtem Baubescheid für ein repräsentatives Wohnhaus.

Das Grundstück liegt nur wenige Gehminuten vom charmanten Marktzentrum entfernt und bietet somit eine ideale Kombination aus zentraler Lage und gleichzeitig ruhigem Wohnkomfort. Geplant sind insgesamt fünf stilvolle Wohnungen, die sich harmonisch auf vier Etagen verteilen werden, ergänzt durch attraktive Außenanlagen, darunter eine großzügige nach Süden ausgerichtete Dachterrasse.

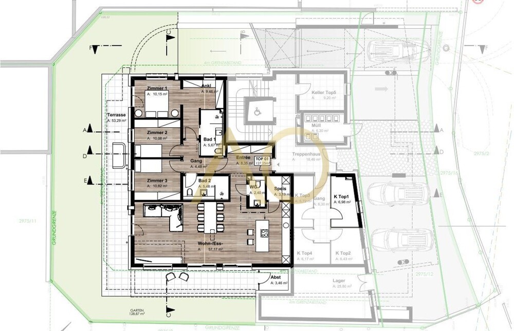
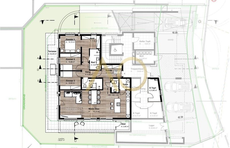
Die Wohnfläche erstreckt sich über ca. 560 m² oberirdisch und umfasst variantenreiche Wohnungsgrößen, die den Ansprüchen unterschiedlichster Käufer gerecht werden. Das Erdgeschoss wird Platz für eine großzügige Wohnung mit ca. 130 m² und fünf praktische Abstellräume bieten. Im ersten Obergeschoss sind drei weitere, optimal konzipierte Wohnungen vorgesehen. Das Highlight bildet das exklusive Penthouse im dritten Obergeschoss, das mit einer beeindruckenden Dachterrasse aufwartet.

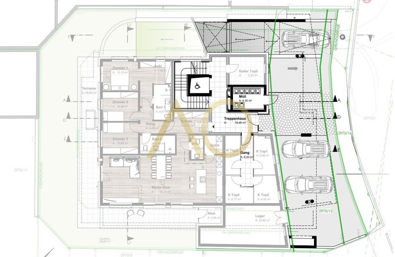
Im Untergeschoss wird eine Tiefgarage mit acht Stellplätzen realisiert, während im Erdgeschoss vier Carportabstellplätze zur Verfügung stehen.

Technisch auf dem neuesten Stand, wird das Gebäude über die umweltfreundliche öffentliche Fernwärme beheizt..

Nutzen Sie die Chance, in ein zukunftsträchtiges Projekt zu investieren, das modernes Wohnen mit traditioneller Tiroler Gastfreundschaft vereint. Erleben Sie das Potential dieses außergewöhnlichen Bauprojekts und lassen Sie sich von seinem Charme überzeugen.
Energieausweis
Zustand projektiert
HWB 42 kWh/(m²a)
Klasse HWB B
fGEE 0,46
3D-Rundgang zu dieser Immobilie
Ausstattung - Barrierefreier Zugang
- Kabel-Sat-TV-Anschluss
- Großzügige Gartenfläche von 130 m² zur Mitbenutzung
- Hochwertige Ausstattung in allen Bereichen
- Personenaufzug für bequeme Erreichbarkeit aller Etagen
- Genehmigtes Wohnhausprojekt in bester Zentrumsrandlage
- Grundstücksfläche von 700 m² in ruhiger Südlage mit ganztägiger Sonneneinstrahlung
- Insgesamt 5 moderne Wohnungen mit Wohnflächen von 50 m² bis 190 m²
- Tiefgarage mit 8 Parkplätzen und zusätzliche 4 Carports
- Grundstücksfläche: 700m²
- BMD: M 2,0
- 5 Abstellbereiche
- Fußbodenheizung für angenehmes Wohnklima
- Fernwärmeversorgung sorgt für umweltfreundliche Energie
- Fußläufige Erreichbarkeit des Zentrums ideal für Pendler und Stadtliebhaber
Lage Das angebotene Grundstück befindet sich in der bezaubernden Gemeinde St. Johann in Tirol, einer der begehrtesten Wohngegenden Österreichs. Die atemberaubende Kulisse der Kitzbüheler Alpen vereint sich hier mit einer hervorragenden Infrastruktur und vielfältigen Freizeitmöglichkeiten. Die Nähe zum Stadtzentrum von St. Johann gewährleistet eine optimale Anbindung an zahlreiche Einkaufsmöglichkeiten, Restaurants und Cafés. Bildungseinrichtungen und medizinische Versorgung sind ebenfalls in unmittelbarer Umgebung zu finden, was den Standort ideal für Familien macht.

Die Region ist bekannt für ihr umfangreiches Freizeitangebot: Im Sommer lassen sich Wander- und Radwege erkunden, während im Winter die nahegelegenen Skigebiete sowohl für Anfänger als auch für erfahrene Wintersportler attraktive Möglichkeiten bieten. Der Standort profitiert zudem von einer hervorragenden Verkehrsanbindung. So sind sowohl die Stadt Kitzbühel als auch das benachbarte Deutschland bequem mit dem Auto erreichbar.

Diese einzigartige Lage vereint ländliche Idylle mit urbanem Komfort und bietet somit die perfekte Grundlage für den Bau eines Traumhauses inmitten der Tiroler Alpen.
Sonstiges Willkommen auf Ihrem Traumgrundstück mit Baugenehmigung für ein Wohnhaus mit fünf Wohneinheiten!

Wir freuen uns, Ihnen dieses außergewöhnliche Grundstück mit bereits genehmigtem Bauprojekt für ein modernes Wohnhaus präsentieren zu dürfen. Hier haben Sie die Möglichkeit, ein exklusives Mehrfamilienhaus in einer begehrten Lage zu realisieren – ideal für Eigennutzer, Investoren oder als Generationenhaus.

Die großzügige Baugenehmigung umfasst ein Wohnhaus mit fünf Wohneinheiten, das mit lichtdurchfluteten Räumen, modernem Komfort und durchdachter Architektur überzeugt. Das Projekt vereint hochwertige Bauqualität mit stilvollem Design und bietet ein besonderes Wohngefühl für alle künftigen Bewohner.

Nutzen Sie diese seltene Gelegenheit, um ein attraktives Wohnobjekt zu schaffen, das sowohl durch seine Lage als auch durch seine Bauweise begeistert. Gerne laden wir Sie zu einer persönlichen Besichtigung des Grundstücks ein. Wir stehen Ihnen flexibel zur Verfügung – auch abends, an Feiertagen oder am Wochenende – um Ihnen dieses besondere Angebot näherzubringen.

Kontaktieren Sie uns noch heute, um einen Besichtigungstermin zu vereinbaren. Wir freuen uns darauf, Ihnen dieses vielversprechende Projekt persönlich vorzustellen!
Grundrisse
  • N3* Living
  • Tiefgarage
  • Pläne III
  • Pläne II
  • Pläne 1. OG 2. OG Keller Dachterrasse
  •  Pläne I
Ihr/e Ansprechpartner/in
  • Thijn Van der Sande
Herr Thijn Van der Sande
E-Mail: thijn.vandersande@almeno.at
Tel.: +43 5372 66774
Mobil: +43 699 1704 1706
Kontaktanfrage

Mit * gekennzeichnete Felder sind Pflichtangaben. Persönliche Daten werden absolut vertraulich behandelt und nicht unbefugt an Dritte weitergegeben.

Weitere interessante Immobilien
2.225 m²
Grundstück mit Panoramablick und viel Potential
6380 St. Johann in Tirol
680 m²
Traumgrundstück mit Kaiser-Panorama und genehmigte ...
6380 St. Johann in Tirol

Exklusiver Immobilien-Gutschein!

Erfolgreich kaufen oder verkaufen, trotz steigender Zinsen. Der Markt hat sich gedreht, wir haben den Durchblick.

Jetzt kostenlos beraten lassen!